DIÓSDLIGETEN ÉPÜLŐ ÖNÁLLÓ CSALÁDI HÁZ ELADÓ – NAGYMÉRETŰ DUPLA
GARÁZZSAL!
A telek 610 m², lejtős, D-NYI tájolású. Az építkezés 2026-ban megkezdődött, a ház átadása 2026 év vége, 2027 év eleje.
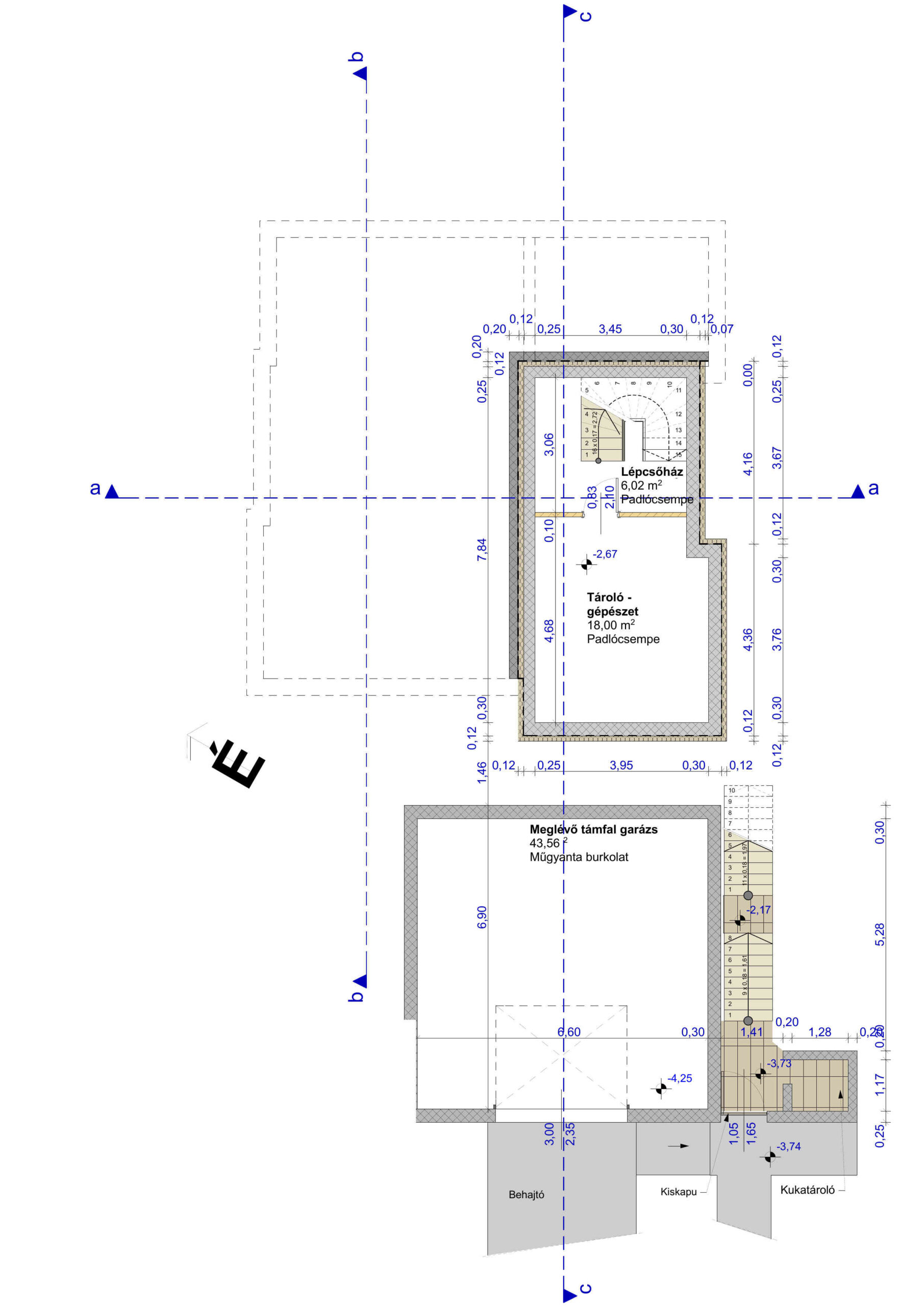
A garázsba az utcaszintről lehet behajtani, ezen a szinten nagy tároló és lépcsőház épül,
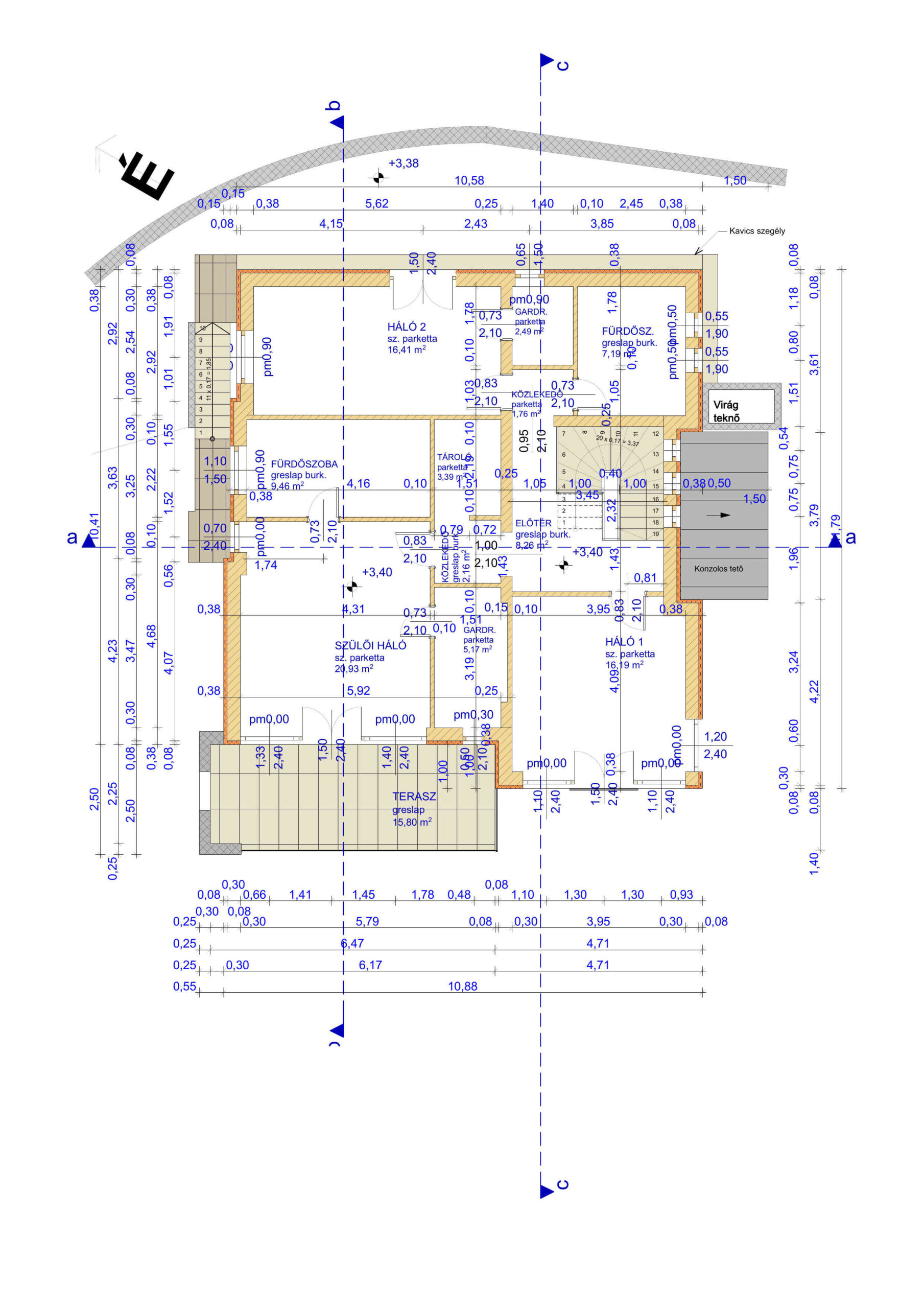
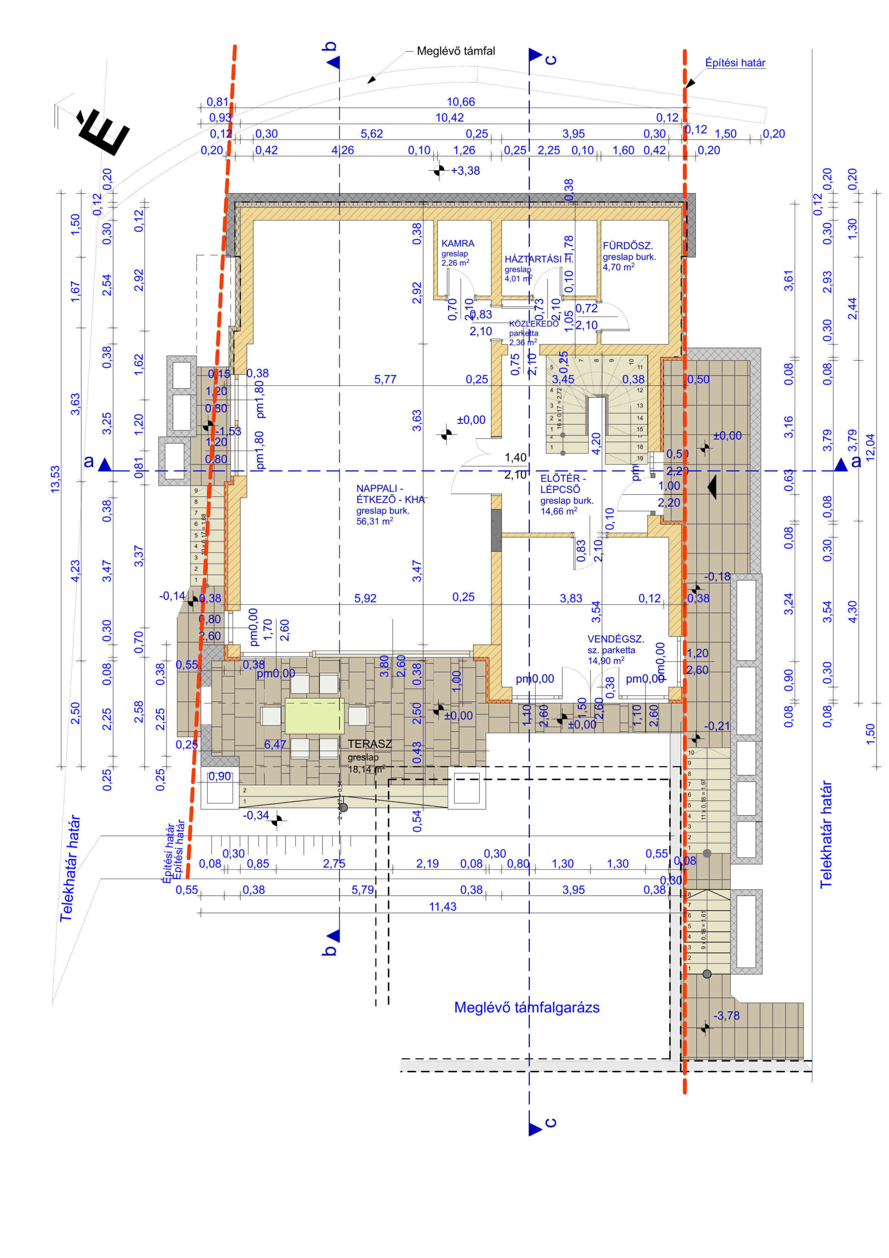
ahonnan közvetlen feljárás lesz az 1. emeletre és egyben kertszintre. A délnyugati tájolású
nappali előtt napfényes kert és terasz épül, ahová medence vagy jakuzzi is elhelyezhető.
Ezen a szinten a tervek szerint van egy plusz hálószoba lehetőség. Ha szobaszámban a
vevőnek elegendő a 3 hálószoba, akkor a nappali méretét tekintve plusz 16 m2-el tud
nagyobb lenni. Ha 4 hálószoba szükséges, akkor a nappali-konyha-étkező együttes 56 m2,
ami így sem nevezhető kicsinek.
A hálószobák gardróbbal és fürdőszobával épülnek, a praktikusság a kialakításnál fő
szempont volt. Jelen pillanatban választhatóak a hideg és melegburkolatok (10-12e Ft/m2), a
beltéri ajtók (100-130e Ft/db) és a szaniterek (fix keret egyeztetéssel).
Az építkezés előre egyeztetett időpontban megtekinthető.
Területek:
• földszint: 99,2 m² + 18,14 m² terasz
• emelet: 93,41 m² + 15,8 m² terasz
• szuterén: 65,58 m²
Összes beszámítható lakóterület: 275,16 m²
Műszaki tartalom:
• 3 rétegű műanyag nyílászárók
• 15 cm hőszigetelés
• mennyezeti hűtés–fűtés rendszer padlófűtéssel
• okosotthon, riasztó és napelem előkészítés
• biztonsági bejárati ajtó
• automata kapu és garázskapu
• korszerű, energiahatékony kialakítás
Ideális választás azok számára, akik modern, nagy alapterületű otthont keresnek nyugodt,
kertvárosi környezetben, és szeretnék az ingatlant még saját igényeik szerint alakítani,
miközben jelentős időelőnyt nyernek a már megkezdett kivitelezéssel.
Diósdliget kiváló infrastruktúrával rendelkezik. Budapest autóval kb. 15–20 perc, az M0, M6 és M7 autópályák gyorsan elérhetők. A közelben óvoda, iskola, bevásárlási lehetőségek, orvosi ellátás és tömegközlekedés is megtalálható.
További információért és megtekintésért keressen bizalommal.
